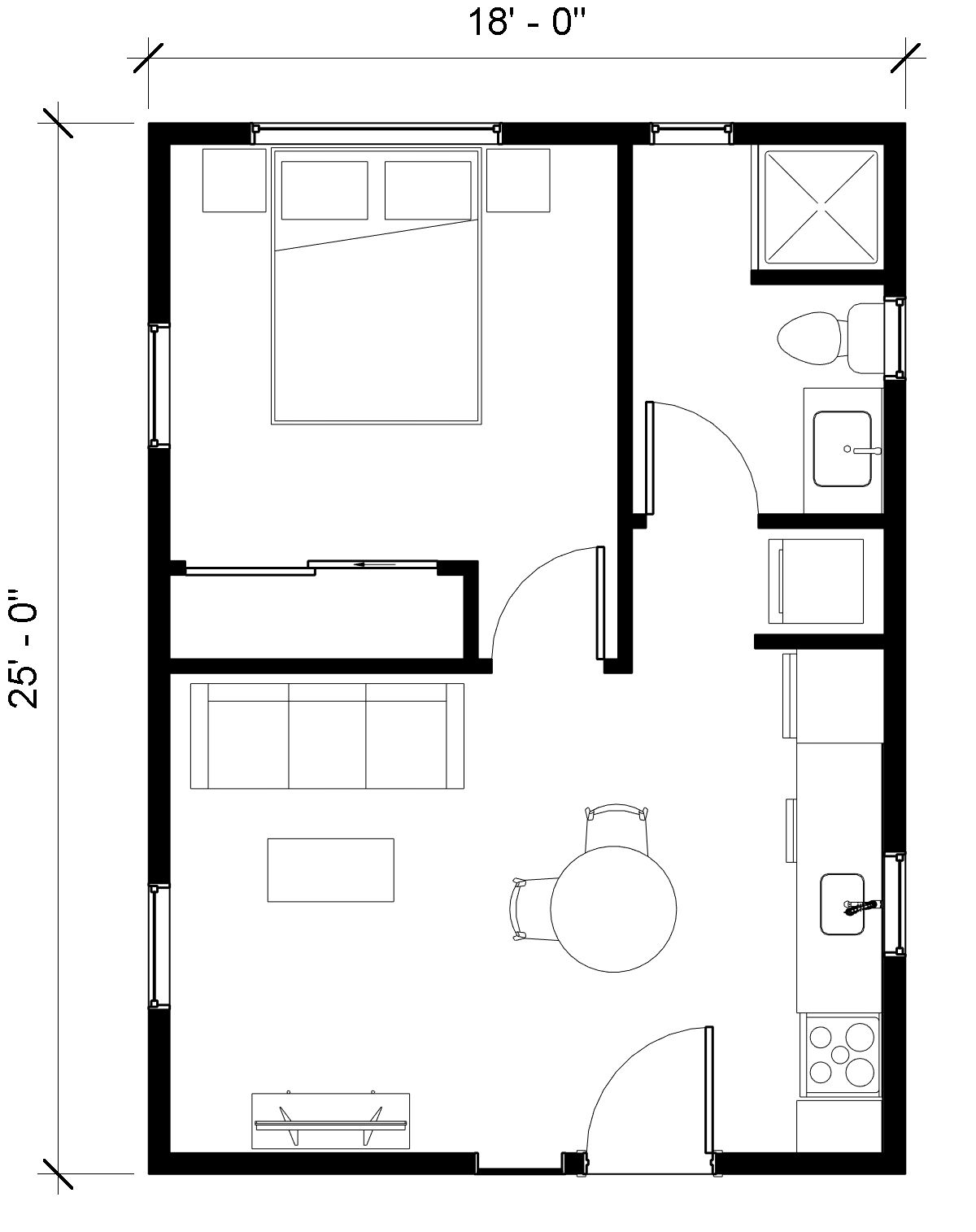
1 BEDROOM
FLOOR PLAN
All ADU Floor Plans
Plan 450 1 Bedroom
- Building Footprint is 20ft x 20ft
- Prices start at $190,000 including design fees
- Plan check and permit fees for this plan vary by city - typically $4,000 to $5,000
- Construction time is typically 3 months
Ideal For:
Our studio homes are the perfect option where the build-able area on the lot is limited. This floor plan is a great fir for a variety of uses such as a small home, guest house, work space, pool house or recreation room.






